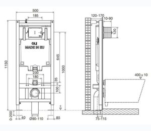
Seinaraam_mehaaniline_OLI80_H1150xL500mm_01